Appartement  - 2 pièces  - 30.41 m² -  360 000 € - À vendre
Nouveau

Appartement - 2 pièces - 30.41 m² - 360 000 € - À vendre

360 000 €
Honoraires agence à charge vendeur

NICE MUSICIENS / CARRÉ D'OR
Entre le boulevard et le square.
8ème et dernier étage.
2 pièces traversant, bénéficiant d'une belle terrasse profonde de 10 m² et d'un balcon de 5 m².
Exposition ouest et est, plein soleil.
Prévoir rénovation complète.
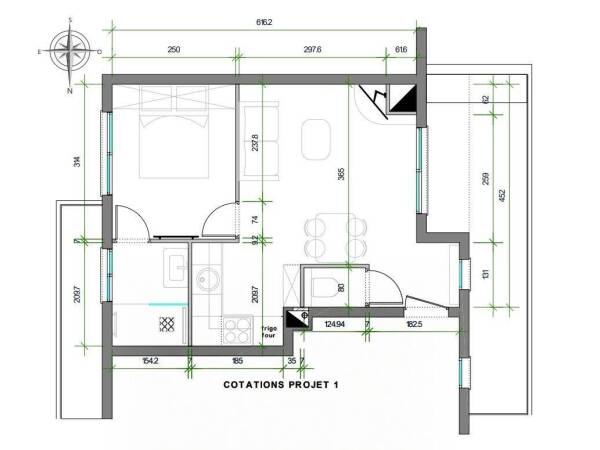
Projet de transformation en deux pièces étudié par un architecte.
Devis travaux fourni, pour une rénovation haut de gamme.
Faibles charges de 90 €/mois, incluant l'eau froide.
Classe énergie F (après travaux D).

Photo de
Photo de
Photo de
Photo de
Photo de
Photo de
Photo de
Photo de
Photo de
Photo de

Caractéristiques

ville : Nice
région : Provence-Alpes-Côte d'Azur
Mandat : FR6585460
Type : Appartement
surface : 30 m²
Surface Carrez : 30.41 m²
pièces : 2
chambre : 1
Chauffage : Electrique
Balcon : 1
terrasse : 1
étage : 8ème
Toilettes : 1
Taxe foncière : 1 344 €

Diagnostic énergétique

Diagnostic de performance énergétique

A - Logement très performant
G - Logement extrêmement consommateur d'énergie

A B C D E F G

425 kWhEP/m²/an

Indice d'émission de gaz à effet de serre

A - Peu d'émission de CO₂
G - Emissions de CO₂ très importantes

A B C D E F G
17 kg éq CO₂/m²/an

Logement à consommation énergétique excessive : classe Réalisé
IMMO-TERRASSE
04 93 85 16 06

Annonces similaires

Les informations sur les risques auxquels ce bien est exposé sont disponibles sur le site Géorisques https://www.georisques.gouv.fr.