Appartement  - 4 pièces  - 80.0 m2 -  499 000 € - Sous offre acceptée

Appartement - 4 pièces - 80.0 m2 - 499 000 € - Sous offre acceptée

499 000 €
Honoraires agence à charge vendeur

Nice Chambrun.
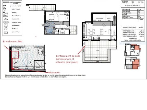
Au 4ème et dernier étage d'un immeuble de standing aux dernières normes et livré en 2021. Magnifique duplex en 4 pièces de 80m² avec solarium de 40m², au calme total et bénéficiant d'une triple exposition (E-N-O) avec vue dégagée sur les collines et le parc Chambrun. Au 1er niveau: Deux chambres avec leur terrasse, salle d'eau avec WC, entrée dégagement avec escalier menant au séjour cathédrale avec sa cuisine ouverte aménagée et équipée de 30m², solarium et 3ème chambre avec placards. Normes PMR, isolation phonique et thermique, garantie décennale. Climatisation encastrée, double vitrage. Grand garage de 16m² et parking inclus. Proximité entrée autoroute, tramway, écoles et commerces. Rare et atypique faire vite.

Photo de
Photo de
Photo de
Photo de
Photo de
Photo de
Photo de
Photo de
Photo de
Photo de
Photo de
Photo de
Photo de
Photo de
Photo de
Photo de
Photo de
Photo de
Photo de
Photo de
Photo de
Photo de
Photo de

Caractéristiques

ville : Nice
région : Provence-Alpes-Côte d'Azur
Mandat : FR5145025
Type : Appartement
surface : 80 m²
Surface Carrez : 80 m²
pièces : 4
chambres : 3
Chauffage : Air pulsé Electrique
Balcon : 1
terrasse : 1
étage : 4ème
niveaux : 2
Salle de bains : 1
Taxe foncière : 2 204 €

Diagnostic énergétique

Diagnostic de performance énergétique

A - Logement très performant
G - Logement extrêmement consommateur d'énergie

A B C D E F G

40 kWhEP/m²/an

Indice d'émission de gaz à effet de serre

A - Peu d'émission de CO₂
G - Emissions de CO₂ très importantes

A B C D E F G
3 kg éq CO₂/m²/an

IMMO-TERRASSE
04 93 85 16 06

Annonces similaires

Les informations sur les risques auxquels ce bien est exposé sont disponibles sur le site Géorisques https://www.georisques.gouv.fr.