Appartement  - 3 pièces  - 50.07 m2 -  620 000 € - À vendre

Appartement - 3 pièces - 50.07 m2 - 620 000 € - À vendre

620 000 €
Honoraires agence à charge vendeur

NICE CARRÉ D'OR - DERNIER ÉTAGE - TERRASSE - VUE DÉGAGÉE
Nice Carré d'Or, à 100 mètres de la mer et de la Promenade des Anglais. Commerces, restaurants et transports à proximité immédiate.
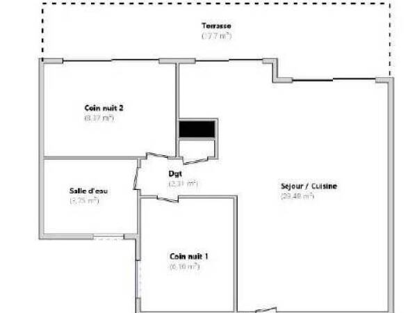
Appartement composé de 2/3 pièces, très lumineux, exposé ouest, en dernier étage avec une vue très dégagée sur la ville et les collines, ouvrant sur une vaste terrasse ensoleillée de 18 m² à ciel ouvert.
Le bien est en parfait état, entièrement refait récemment. Un spacieux séjour de 29,48 m² avec une cuisine ouverte entièrement équipée et une chambre donnant sur la terrasse au calme, une chambre d’appoint ou bureau, une salle de douche avec WC et fenêtre. Une cave en sous-sol. Double vitrage en aluminium sur toutes les fenêtres coulissantes. Parties communes en parfait état. Résidence de standing avec gardien, ascenseur et surveillance électronique. Chauffage et eau chaude individuels. Rare sur le marché.

Photo de
Photo de
Photo de
Photo de
Photo de
Photo de
Photo de
Photo de
Photo de
Photo de
Photo de
Photo de
Photo de
Photo de
Photo de

Caractéristiques

ville : Nice
région : Provence-Alpes-Côte d'Azur
Mandat : FR3483134
Type : Appartement
surface : 50 m²
Surface Carrez : 50.07 m²
pièces : 3
chambres : 2
terrasse : 1
étage : 6ème
niveaux : 6
Toilettes : 1
Taxe foncière : 1 262 €

Diagnostic énergétique

Diagnostic de performance énergétique

A - Logement très performant
G - Logement extrêmement consommateur d'énergie

A B C D E F G

316 kWhEP/m²/an

Indice d'émission de gaz à effet de serre

A - Peu d'émission de CO₂
G - Emissions de CO₂ très importantes

A B C D E F G
10 kg éq CO₂/m²/an

IMMO-TERRASSE
04 93 85 16 06

Annonces similaires

Les informations sur les risques auxquels ce bien est exposé sont disponibles sur le site Géorisques https://www.georisques.gouv.fr.