Appartement  - 3 pièces  - 82.0 m2 -  470 000 € - À vendre

Appartement - 3 pièces - 82.0 m2 - 470 000 € - À vendre

470 000 €
Honoraires agence à charge vendeur

Nice Carré d’Or, à 50 m de la Promenade des Anglais.
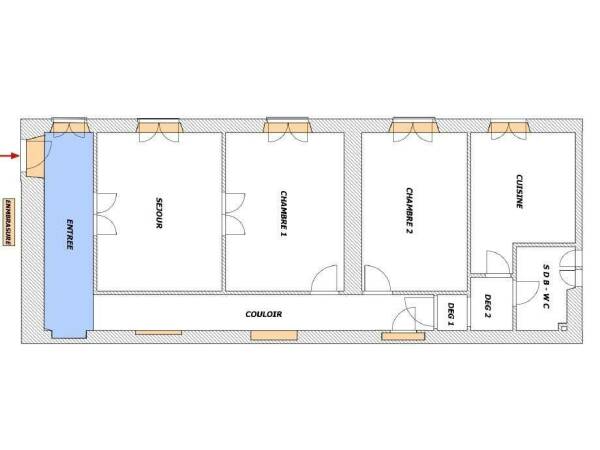
Dans un immeuble Belle Époque de 1909 « Le Castel Flamand », très beau T3 de 82 m² avec cave, situé au 1er étage avec ascenseur.
Exposé sud, vue sur jardin intérieur de la copropriété. Calme absolu.
Beaux volumes, appartement modulable, à rénover, beau potentiel.
Très bel emplacement, proche tram « Alsace Lorraine » et toutes commodités.
Idéal investisseur ou profession libérale

Chauffage et eau chaude individuels
Pas de procédure. Copropriété de 39 lots.

Photo de
Photo de
Photo de
Photo de
Photo de
Photo de
Photo de
Photo de
Photo de
Photo de
Photo de
Photo de
Photo de

Caractéristiques

ville : Nice
région : Provence-Alpes-Côte d'Azur
Mandat : FR4372831
Type : Appartement
surface : 82 m²
Surface Carrez : 82 m²
pièces : 3
chambres : 2
Chauffage : Convecteur Gaz
étage : 1er
Salle de bains : 1
Taxe foncière : 1 429 €

Diagnostic énergétique

Diagnostic de performance énergétique

A - Logement très performant
G - Logement extrêmement consommateur d'énergie

A B C D E F G

230 kWhEP/m²/an

Indice d'émission de gaz à effet de serre

A - Peu d'émission de CO₂
G - Emissions de CO₂ très importantes

A B C D E F G
40 kg éq CO₂/m²/an

IMMO-TERRASSE
04 93 85 16 06

Annonces similaires

Les informations sur les risques auxquels ce bien est exposé sont disponibles sur le site Géorisques https://www.georisques.gouv.fr.